Sommarhus Utsikten
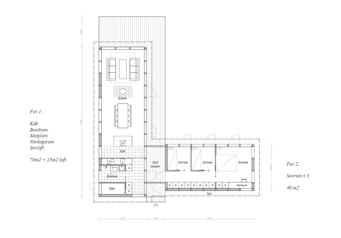
Skissförslag för ett sommarhus, 70m2 + 40m2
Plats: Bredskär, Finland
År: 2021
Status: Koncept
Sommarhus Utsikten
Skissförslag för ett sommarhus, 70m2 + 40m2
Plats: Bredskär, Finland
År: 2021
Status: Koncept